THORN
Trippaardstraat 33 - 6017 AM
Netherlands

€675,000
Living Area
232m2
Plot Size
655m2
Bedrooms
4

Description

The picturesque white town of Thorn exudes cultural history. Strolling past the imposing Stiftskerk and the many valuable buildings in the old town, you'll feel transported back to the Middle Ages. Thorn has retained its authentic atmosphere and historic charm, and is surrounded by nature and water – a perfect place for anyone who appreciates peace, beauty, and character.

This beautiful home is located in the heart of this historic town center, ideal for those who want to combine living with B&B opportunities. Here, you can enjoy everything Thorn has to offer, all within easy reach.

Layout & Furnishings

Basement:
A cool pantry, perfect for your wine collection or supplies. An additional connection for a washing machine is available.

Ground floor:
The spacious hall with a fireplace and meter cupboard provides access to the toilet, a bedroom with a separate bathroom, and the kitchen. The stairs to the first floor are also accessible from the hall. The hall also served as the B&B's former living room. This space can be used for various purposes.

The spacious and bright living room (approx. 56 m²) offers excellent access to the garden thanks to large windows at the side and double doors at the rear. The living room is divided into a cozy sitting area with a fireplace and a separate dining area, ideal for dinners with family and friends. The modern floor tiles and sleek plastered walls give the space a timeless look.

The upstairs room on the ground floor is multifunctional and also accessible from the living room. The wooden plank flooring gives this space a warm atmosphere.

The upstairs room on the ground floor is multifunctional and also accessible from the living room. The wooden plank flooring gives this space a warm atmosphere.

The spacious kitchen/diner (approx. 21 m²) is a dream for any cooking enthusiast. This luxurious, light-colored extension kitchen is fully equipped with a refrigerator, 6-burner cooktop, oven, microwave, extractor hood, and dishwasher. Here you can easily enjoy delicious meals. The kitchen floor is finished with the same beautiful tiles as in the living room.

Also on the ground floor are an additional bedroom and a second bathroom with a shower and sink.

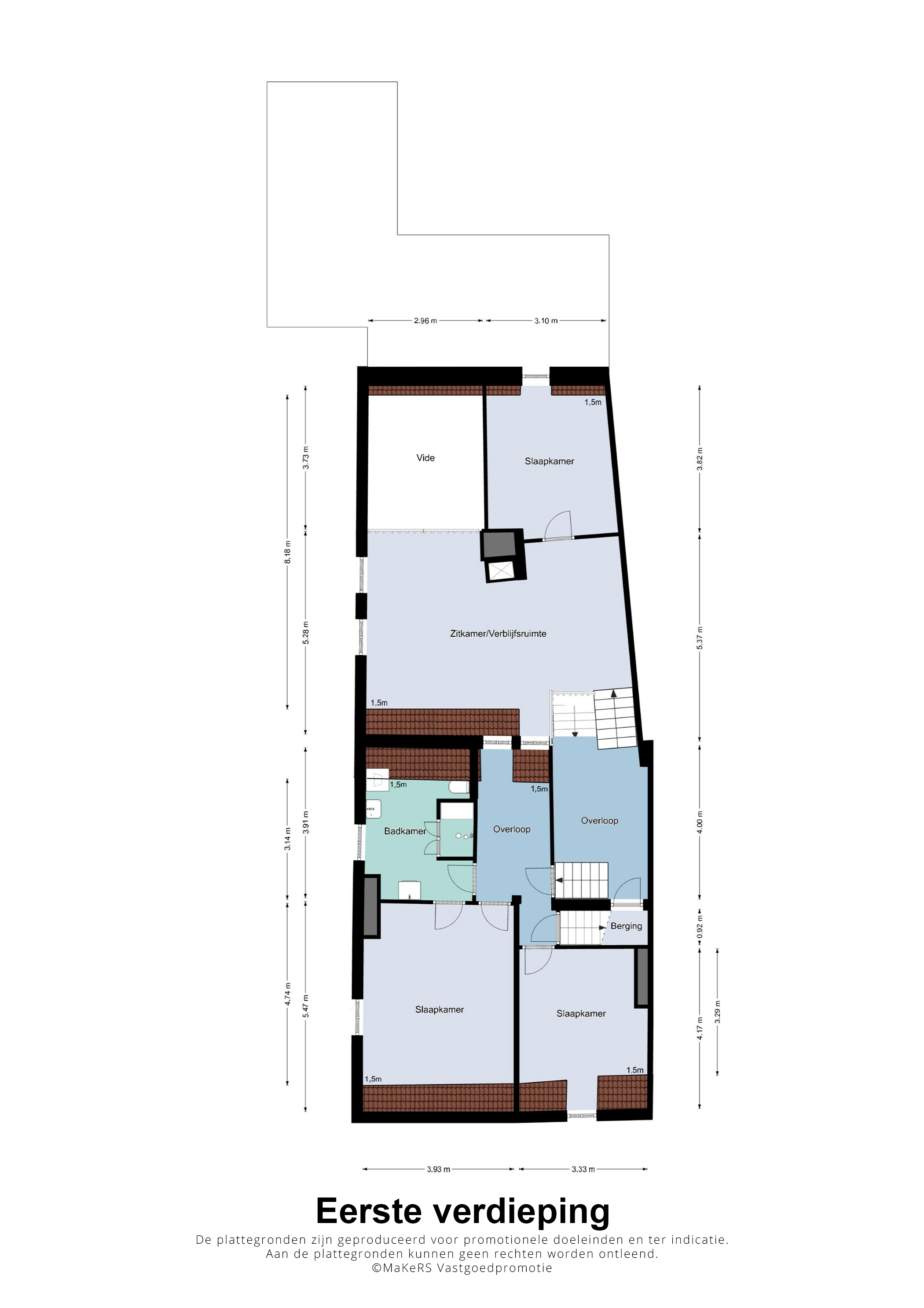
First floor:
The first floor is accessible via two separate staircases, ideal for a B&B layout. Here you'll find:

Three bedrooms (approx. 12.6, 21.6, and 11.4 m²)

Luxurious, almost fully tiled bathroom with a sink, toilet, and shower, including a washing machine connection

Cozy living room/lounge (approx. 34 m²) with wooden flooring and a fireplace, a wonderful place to relax.

Second floor:
Accessible via a fixed staircase, currently used as an attic storage space. The central heating boiler and water heater are also located here.

Outdoor area:
The garden seamlessly blends in with the house and offers plenty of privacy, despite its central location in the historic town center. The back garden is accessible via a private rear entrance and features several patios – one of which is covered – a lawn, and attractive flower beds.

Detached garage (approx. 22.7 m²):
Equipped with French doors and a practical attic storage space, ideal for storage or a hobby room.

Features

Transfer of ownership
Asking Price
€ 675.000
Status
beschikbaar
Acceptance
in overleg
Construction
Kind of house
Eengezinswoning
Building type
halfvrijstaande woning
Construction period
1700
Energy rating
D
Roof type
samengesteld dak
Bedrooms
4
Bathrooms
2
Surface Areas And Volume
Living Area
232 m2
Other indoor space
14 m2
Exterior space attached to the buildinge
20 m2
External storage space
17 m2
Volume in cubic meters
947 m3
Plot Size
655 m2
Facilities
Aan rustige weg
In centrum
Baerz & Co Property Brochure

Brochure

Videos

Floor Plans

Jack Frenken Makelaars & adviseurs

Graaf Reinaldstraat 1
6041 XB Roermond

info@jackfrenken.nl
+31 475335225

www.jackfrenken.nl/

Information / Viewing request

Paul Pouls profile image
Paul Pouls
Registermakelaar

Buying a Luxury Property in Thorn

Thorn offers a unique blend of heritage, culture, and tranquil living. Its elegant homes, close-knit community, and esteemed services create an appealing environment for international buyers seeking refined, discreet lifestyles.