Woonboerderij for sale in HUIZEN

HUIZEN E. Ludenstraat 3 - 1271 PS The Netherlands


Marquiette Schaap profile image
Marquiette Schaap
Real Estate Agent
+31 (0)35 76 35 424
hello@artoflivingbymar.com

Art of Living by Marquiette & Partners

Living area
346m2
Plot size
1010m2
Bedrooms
6

Description

In Huizen staat een unieke boerderij met een warme sfeer, die met veel liefde en vakmanschap in 2022 en 2023 volledig is gerenoveerd. Een boerderij waar historie en eigentijds comfort elkaar moeiteloos aanvullen met maar liefst 376 m² woonoppervlak en een perceel van ruim 1.000 m².

Begane grond
De royale hal met deels een glazen dak en vide geeft meteen een gevoel van ruimte en licht. De moderne leefkeuken vormt het hart van het huis: een plek om samen te komen, met een riant kookeiland met bar en grenzend aan het eetgedeelte de gashaard. Grote raampartijen en hoge plafonds zorgen voor een spectaculaire sfeer en lichtinval. Vanuit de keuken loopt u door naar de woonkamer, met open haard, schuifpuien naar de tuin. Daarnaast zijn er op de begane grond een praktische bij/waskeuken met stortkoker voor de was, een werkkamer en een extra kamer die ideaal is als speel-en/of logeerkamer.

Verdieping
Via een prachtige trap kom je op de eerste verdieping daar bevinden zich de luxe oudersuite, compleet met maatwerk kasten en een badkamer waarin het daglicht zacht door het glazen dak valt. Daarnaast zijn er vier unieke royale kinderkamers, elk met een eigen karakter: van bedstede tot slaapvide. Een tweede badkamer en separaat toilet maken de verdieping compleet.

Buitenleven
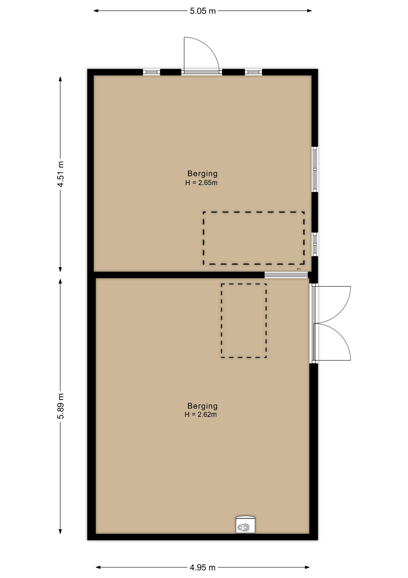
De tuin is fraai aangelegd en biedt verschillende terrassen. De voormalige hooiberg en de multifunctionele schuur van ca. 60 m² geven volop mogelijkheden – denk aan een atelier, kantoor of zelfs kangoeroewoning. Het rieten dak, de hoge ramen en de warme uitstraling maken dit huis niet alleen duurzaam (energielabel A), maar ook tijdloos charmant.

De omgeving
Huizen is een dorp dat veel te bieden heeft. Sportliefhebbers kiezen uit hockey, voetbal, tennis, padel of fitness, en ’s zomers is er het buitenzwembad Sijsjesberg. Voor water- en zeilliefhebbers ligt het Gooimeer met zijn jachthavens om de hoek. Natuurliefhebbers wandelen of fietsen zo het Goois Natuurreservaat in. En toch blijft alles dorps en dichtbij: scholen, winkels zijn op loop/fiets afstand bereikbaar.
Een familiehuis in optima forma, sfeervol, royaal, licht en verbouwd met prachtige materialen. Kortom meer dan de moeite van een bezichtiging waard.

Deze boerderij wordt verkocht onder het voorbehoud van gunning.

Features

Transfer of ownership
price
€ 2.750.000 k.k.
Status
beschikbaar
Acceptance
in overleg
Construction
Kind of house
Woonboerderij
Building type
vrijstaande woning
Construction period
1905
Energy rating
A
Roof type
zadeldak
Bedrooms
6
Bathrooms
3
Surface Areas And Volume
Living area
346 m2
Other indoor space
30 m2
External storage space
53 m2
Volume in cubic meters
1472 m3
Plot size
1010 m2
facilities
Alarminstallatie
Schuifpui
Dakraam
Aan rustige weg
In centrum
Beschutte ligging
Baerz & Co Property Brochure

Brochure

Information / Viewing request

Videos

Photos