Villa zu verkaufen in Rhenen

Rhenen De Helling 27 - 3911 VB Niederlande


Wistik Zonnenberg profile image
Wistik Zonnenberg
Real Estate Agent
+31 318 559600
info@zonnenbergmakelaardij.nl

Zonnenberg Makelaardij
Kerkewijk 108
3904 JG Veenendaal
NETHERLANDS
+31 318 559600
www.zonnenbergmakelaardij.nl
info@zonnenbergmakelaardij.nl

Wohnbereich
270m2
Grundstücksfläche
729m2
Schlafräume
6

Beschreibung

Aan De Helling 27 te Rhenen bevindt zich een exclusieve, royaal bemeten en uitstekend onderhouden vrijstaande villa met een woonoppervlakte van maar liefst 270 m². De woning beschikt over zes slaapkamers, drie badkamers, een open woon- en eetkamer, een multifunctioneel souterrain, een garage en een riante, groene tuin met zonnig terras. Dankzij de aanwezigheid van zowel een badkamer als een slaapkamer op de begane grond is de woning levensloopbestendig ingericht. Het afwerkingsniveau is hoogwaardig en tot in detail verzorgd, wat bijdraagt aan direct wooncomfort.

De ligging aan de rand van Rhenen combineert rust en natuur met uitstekende voorzieningen. Op korte afstand bevinden zich supermarkten, winkels, scholen, sportverenigingen, horecagelegenheden en het openbaar vervoer. Station Rhenen is bereikbaar per fiets en nabijgelegen uitvalswegen maken het eenvoudig mogelijk om steden als Utrecht, Arnhem en Wageningen te bereiken. De wijk is groen en kindvriendelijk, met speelvoorzieningen in de buurt en veel wandel- en fietsmogelijkheden in de directe omgeving.

Entree:
Een royale oprit met plaats voor meerdere auto’s leidt naar de entree en de ondergelegen garage. Binnen treft u de ruime hal, die fungeert als centrale verbinding tussen de verschillende vertrekken. Er is ruimte voor een kapstok en opbergmeubel, waardoor de hal zowel praktisch als representatief is ingericht.

Woonkamer:
De lichte en open woonkamer vormt het hart van de woning. Dankzij de grote raampartijen rondom geniet u hier van veel natuurlijk licht en een heerlijk ruimtelijk gevoel. De indeling omvat meerdere comfortabele zitgedeeltes en een eetruimte, voorzien van een eetkamerbank met opbergruimte onder de zitting. Een stijlvolle houtgestookte inbouwhaard vormt de eyecatcher. Via schuifdeuren is er directe toegang tot de tuin. Daarnaast is er een extra kamer, die voorheen in gebruik was als slaapkamer. Deze ruimte is uitermate geschikt als lees-, of studeerkamer en is uitgerust met een plafondventilator en eveneens voorzien van schuifdeuren naar de tuin.

Keuken:
De moderne halfopen keuken grenst direct aan de eetkamer. Het U-vormige aanrecht is voorzien van hoogwaardige Siemens apparatuur, waaronder een inductiekookplaat met geïntegreerde afzuiging, Quooker-kraan, combimagnetron, volautomatische koffiemachine, warmhoudlade, koel-vriescombinatie met water- en ijsdispenser, vaatwasmachine en spoelbak. De keuken combineert stijl en functionaliteit en is een fijne plek om te koken en gezellig samen te zijn.

Slaapkamer:
Een ruime slaapkamer op de begane grond maakt deze verdieping extra praktisch. Dankzij de grote ramen is de kamer heerlijk licht en kan deze desgewenst ook als werkkamer, speelkamer of logeerruimte worden ingericht. De vloerverwarming kan, evenals in de aangrenzende ruimte, afzonderlijk worden bediend voor optimaal comfort.

Sanitair:
De volledig betegelde badkamer op de begane grond heeft een ligbad, douchecabine, zwevend toilet en een wastafel met meubel. De badkamer is ruim, praktisch en strak afgewerkt, evenals de aangrenzende toiletruimte.

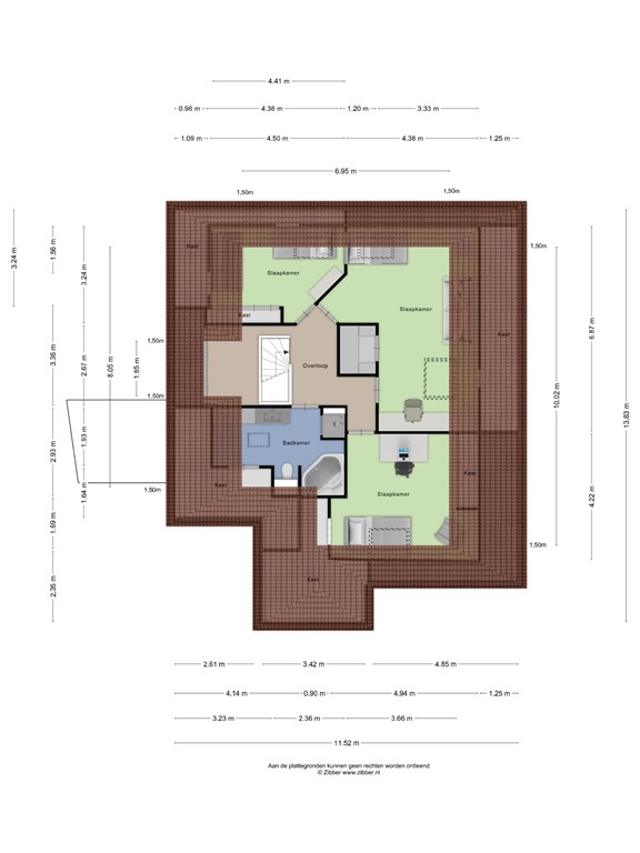
1e verdieping:
Een vaste trap vanuit de hal leidt naar de eerste verdieping, waar u drie slaapkamers en een tweede badkamer aantreft. Deze verdieping biedt volop ruimte voor een groot gezin of gasten.

Slaapkamers:
De slaapkamers bevinden zich rondom de overloop en zijn allen ruim van opzet. Dankzij grote ramen, voorzien van verduisteringsgordijnen, rolhorren en geïntegreerde buitenzonwering, is er optimale lichtinval en uitzicht, terwijl de houten draagbalken zorgen voor een warme en karaktervolle uitstraling. De kamers bieden flexibele indelingsmogelijkheden en zijn tevens geschikt als hobby- of werkkamer.

Sanitair:
Een nette badkamer grenst eveneens aan de overloop. Deze is voorzien van een ruime douchecabine, ligbad, wastafel met spiegel en een zwevend toilet. De neutrale afwerking maakt de badkamer tijdloos en direct klaar voor gebruik.

Souterrain:
Een trap vanuit de hal leidt naar het verrassend ruime souterrain, dat diverse gebruiksmogelijkheden biedt. Deze verdieping geeft toegang tot de garage met aangrenzende hobbyruimte, voorzien van krachtstroom. Het souterrain omvat tevens twee slaapkamers, een walk-in closet, een badkamer uitgerust met een luxe infrarood sauna en een praktische wasruimte met een op maat gemaakte kast en aansluitingen voor wasmachine en droger. Daarnaast is er een extra ruimte met eveneens een maatwerk kast en een deur die middels een trap directe toegang tot de oprit biedt.

Slaapkamers:
De slaapkamers in het souterrain zijn netjes onderhouden en ook perfect geschikt als logeer-, hobby- of werkkamer.

Walk-in closet:
Een praktische inloopkast biedt volop ruimte voor kleding en persoonlijke spullen, ideaal om alles overzichtelijk op te bergen.

Sanitair:
Een derde badkamer bevindt zich eveneens in het souterrain. Deze is uitgerust met een douchecabine, zwevend toilet, handdoekradiator, handdoekrek, wastafel met spiegel en een opbergmeubel. Als unieke toevoeging beschikt deze badkamer over een fantastische infrarood sauna, waar u heerlijk kunt ontspannen.

Garage:
Een inpandige garage maakt de woning compleet en biedt plaats voor een auto, fietsen of extra opslag.

Buitenruimte:
De groene en zonnige, op het zuiden gelegen achtertuin vormt een waar hoogtepunt van deze woning. Het ruime terras geeft volop ruimte aan een buitentafel en de westelijke veranda biedt plaats aan een loungeset. Het vele groen zorgt voor een natuurlijke en rustige uitstraling. Een kas biedt mogelijkheden voor tuinliefhebbers, en achterin de tuin bevindt zich een volière die gebruikt kan worden voor vogels of andere dieren. Dankzij de achterom is de tuin bovendien goed toegankelijk.

Algemene gegevens
- Type woning: Villa
- Bouwjaar: 1999
- Verbouwjaar: 2021 - 2025
- Aantal kamers: 7
- Aantal slaapkamers: 6
- Aantal badkamers: 3
- Parkeerruimte: voldoende op eigen oprit en parkeerkelder
- Aanwezig: berging/garage/oprit/parkeerkelder
- Ligging tuin: rondom/zuid
- Tuin bereik: achterom/via de woning

Technische gegevens
- Warmwatervoorziening: NEFIT 90001 HRC30 CW6
- Verwarmvoorziening: NEFIT 90001 HRC30 CW6
- Vloerverwarming: begane grond
- Openhaard
- Voorzieningen: buitenzonwering/souterrain/sauna/Quooker/keramische tegels
- Mechanische ventilatie: aanwezig
- Isolatie: dak/spouw/vloer geheel
- Dubbel glas: geheel, HR++
- Glasvezel kabel, TV kabel
- Kozijnen: hout/kunststof

WILT U EVEN BINNEN KIJKEN?

Voor meer informatie omtrent deze woning, kunt u contact opnemen met ons kantoor in Rhenen.

U bent van harte welkom! De beste indruk van deze woning krijgt u natuurlijk tijdens een bezichtiging. Wij proberen onze bezichtigingen altijd in samenspraak met verkoper en koper te plannen en nemen ruim de tijd, zodat u op uw gemak de woning kan bekijken en ervaren.
N.B. Aan de samenstelling van deze gegevens is maximale zorg besteed. Aan onvolkomenheden in de vermelde gegevens en tekeningen kunnen geen rechten en aanspraken worden ontleend.

Eigenschaften

Übertragung
Preisvorstellung
€ 1.195.000 k.k.
Status
Available
Akzeptanz
In Concert
Referenz
08056
Bauwesen
Typ des Wohnhauses
Villa
Art der Konstruktion
Detached House
Jahr der Errichtung
1999
Energieklasse
B
Typ des Daches
pyramid hip
Schlafräume
6
Bäder
3
Fläche und Inhalt
Wohnbereich
270 m2
Andere Innenräume
47 m2
Gebäudebezogene Freiflächen
16 m2
Externer Speicherplatz
8 m2
Inhalt
1175 m3
Grundstücksfläche
729 m2
Anlagen
Fireplace
Fluetube
Fibreopticcable
Garden
Internetconnection
Outdoorawnings
Sauna
Skylight
Slidingdoors
Storageroom
Ventilation
Baerz & Co Property Brochure

Brochure

Informationen / Besichtigungsanfrage

Videos

Video De Helling 27

Fotos

Grundrisse